Casa-Hangar moderna na Fazenda Bonanza
Fazenda Bonanza, Salto de Pirapora - SP

Casa-Hangar moderna na Fazenda Bonanza

Scale Icon - Realtor X Webflow Template
4300
Bed Icon - Realtor X Webflow Template
Bathroom Icon - Realtor X Webflow Template
2
Parking Icon - Realtor X Webflow Template

Casa-Hangar na Fazenda Bonanza, estilo moderno minimalista

Preço
R$1.200.000

Entre em contato para mais informações

Success Icon - Realtor X Webflow Template
Seu contato foi recebido.
Nossa equipe entrará em contato em até no máximo 24h.
Oops! Something went wrong.

Casa-Hangar na Fazenda Bonanza, estilo moderno minimalista

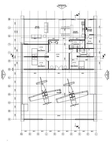
Área do terreno: 4.300m²

Área construída: 432m²

Hangar para duas aeronaves: 216m²

Casa integrada com 216m², contendo:

- 3 dormitórios (1 suíte)

- 2 banheiros

- Sala de estar, sala de jantar e cozinha integradas

- Área de serviço

- Despensa

- Pátio concretado

- Semi mobiliada

Localização: https://maps.app.goo.gl/ixDvhS768JvUQspk6

Ótimo preço: R$ 1.200.000 à vista.

Peça fotos, vídeos e mais informações

Amenidades da propriedade

Garden Icon - Realtor X Webflow Template
Jardim
Video Camera Icon - Realtor X Webflow Template
Segurança 24/7
Dish Washer - Realtor X Webflow Template
Lavanderia
WiFi Icon - Realtor X Webflow Template
Internet
Pool Icon - Realtor X Webflow Template
Piscina
Garage Icon - Realtor X Webflow Template
Garagem
Jacuzzi - Realtor X Webflow Template
Jacuzzi
Elevator Icon - Realtor X Webflow Template
Elevador
Dish Washer - Realtor X Webflow Template
Dish washer
Preço
R$1.200.000

Entre em contato para mais informações

Success Icon - Realtor X Webflow Template
Seu contato foi recebido.
Nossa equipe entrará em contato em até no máximo 24h.
Oops! Algo deu errado, tente novamente.